平面圖論吉凶:煩請老師分析平面圖隔局與擺設

Ailan風水研究室首頁>平面圖分析論首頁>煩請老師分析平面圖隔局與擺設
問診時間

Ailan老師您好:


我最近要請設計公司裝潢房子,想麻煩您幫我分析一下平面圖及預定傢俱的配置方位,

此房屋座向為座東南東朝西北西,有勞Ailan老師幫忙觀察和解答?由衷的感謝!


一樓平面圖 附檔為二樓平面圖





 

 

搶救風水大作戰

Ailan老師您好:


我最近要請設計公司裝潢房子,想麻煩您幫我分析一下平面圖及預定傢俱的配置方位,

此房屋座向為座東南東朝西北西,有勞Ailan老師幫忙觀察和解答?由衷的感謝!


您好!以下為對貴宅之分析,希望對您有所幫助︰

1.

東南方之財位可以設置魚缸或是綠色盆栽招財,而西南方可以放置陶磁所制之聚寶盆來招財,

另外因為貴宅為五鬼臨門之局所以需在貴宅西北方設置水缸才會富貴聚財,

如果未設置魚缸只有領死薪水之格,無法大發喔。

2.一樓︰車庫們正對窗戶,此為穿堂煞,建議您可以封窗或是設置不透光玄關化解。

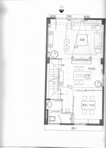
3.二樓︰客廳之擺設錯誤,主沙發之位置背門擺設,且沙發背後開窗此會有嚴重之犯小人效應,

建議將電視櫃之位置移到目前圖面之入門靠牆處,而將次沙發改擺成主沙發,

這樣就可以有效化解犯小人之效應。

另外客廳之窗戶正對和室門,再對到和室之窗戶此為穿堂煞,

會有漏財之效應,建議您可以封窗或是設置屏風化解。

4.三樓︰三樓為廚房和餐廳區,不過不建議設置兩個瓦斯爐,

因為家中設置兩灶,會有分佳或是外遇不團結之效應,所以不建議設置兩個瓦斯爐為宜。

瓦斯爐梁壓灶之部分,如果您可以避開最好,如果無法避開,

建議您可以掛置一對麒麟踩八卦和一對葫蘆來作化解。

另外您圖面上有瓦斯盧正對冰箱之水火相克煞氣,會有濫桃花和血光露財之效應,建議您需將冰箱之位置做調整為宜。

另外您廚房之牆面是否有部分作成玻璃牆,如果此牆面透光,需注意前窗戶正對此玻璃牆面再對到熱炒區之窗戶,

此為穿堂煞喔,建議將此牆面改乘不透光之磚牆為宜。

5.四樓︰主臥室床鋪擺于挑高之客廳空間之上,雖然不是騎樓,但因挑高關係所以會造成氣場較為不穩,

氣場不穩相對也會干擾到人之思緒,而做出錯誤之判斷,且也會影響身體健康,

如果可以在床鋪下鋪上地毯然後在地毯下週邊平均安置36枚古錢來穩住氣場作化解。

另外電視正對床鋪擺設,會嚴重影響身體健康,脾氣暴躁,夫妻容易口角,所以建議電視不宜正對床鋪擺設。

主臥室一整層樓之空間,其面積遠大於客廳之空間,所以有房大於廳之效應。

房大於廳居住於此之人會較為自私,嚴以待人寬以律己之效應,所以相對影響自己之社交能力和前途。

如果可以做成空間上之區隔來化解當然最好,如果無法做成隔間,

建議您可以再主臥室這邊之門框安置一組五帝錢。


而浴室門這邊之門檻也安置一組五帝錢,藉由五帝錢之氣場來將空間做區隔化解。

另外浴室門衝床會嚴重影響健康,

所以建議您需在此設置一到不透光之屏風來作化解。


這樣可以順便化解穿堂煞。

6.五樓︰有房門對房門之鬥口煞氣,建議您可以掛置長布簾來作化解。

女孩房︰有所廁所門衝床之情形,這將會嚴重影響身體健康,所以建議您需設置一到玄關作化解,

如果無法設置玄關,可以在廁所門加掛長布簾,並在其門檻處安置一組五帝錢來作化解。

書桌背門擺設,會有無法專心和犯小人之效應,建議您可以做90度或是180度之調整。

男孩房︰也有廁所門衝床之情形,所以一樣需要化解。

書桌之擺設也是錯誤,背門擺設無法專心和犯小人之效應,建議做90度或是180度之調整為宜。

7.頂樓︰有穿堂煞建議在互對之部分窗戶作風窗就可以達到化解之效果。

以上大略之建議請參考!

希望對您有所幫助!


Ailan


回首頁 回平面圖分析 我想請老師分析平面圖